ご来場特典で最大20万円分の家具プレゼント!グレーを基調としたシックな空間に、可動間仕切り棚で柔軟な使い方を実現。回遊動線で家事効率も向上し、快適な暮らしを提供。

※一部CG処理を施しています
愛知県でリノベーション事業を展開する株式会社sumarch(本社:愛知県名古屋市中村区、代表取締役:鳥居儀彰、以下KULABO)は、マンションリノベーション見学会を2025年4月12日(土)・13日(日)、愛知県大府市にて開催いたします。
実際にKULABOでリノベーションしたオーナー様のお住まいを見学できる「リノベーション見学会」です。間取りや設計の工夫・デザインのアイデアなど、家づくりのヒント盛沢山!写真だけでは分からない素材の質感や雰囲気、リノベーションの魅力をREALにご体感ください!
見学会について、詳しくは特設ページをご確認ください。
https://kulabo.co.jp/events/102
見学会見どころポイント
***DATA***
家族構成:ご夫婦+お子様1人
リノベーション費用:約900万円
間取り:[before]3LDK→[after]3LDK
施工面積:75平方メートル
築年数:築27年
打ち合わせ期間:約2ヵ月
工事期間:約2ヵ月半

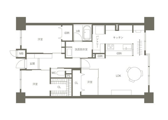
before間取り

after間取り
■グレーを基調としたシックなインテリア

※一部CG処理を施しています
グレーを基調としながらも、暗くなり過ぎない洗練された印象に仕上げました。リビングの壁一面にはエコカラットを配置し、キッチンには濃い木目の下がり天井を設けました。各所にメリハリを持たせつつ、全体としてバランスの取れたインテリアに仕上がっています。
■必要に応じて空間を仕切る可動間仕切り棚

息子様が帰省された際に使用できる可動間仕切り棚を設置。普段はすっきり収納でき、リビングを広々と使えるように設計されています。
■キッチン⇔パントリー⇔洗面所をつなぐ便利な回遊動線

キッチン⇔パントリー⇔洗面所をつなぐ回遊動線を採用することで、家事効率が大幅に向上しました。さらに、奥様の寝室から直接アクセスできるウォークインクローゼットも設け、使いやすさを重視しています。
開催概要
開催日:2025年4月12日(土)・13日(日)
時間:10時~17時
開催場所:愛知県大府市
※オーナー様のプライバシー配慮のため、詳しい住所はご予約いただいた方だけにお伝えしております。
参加費:無料
申込締切:2025年4月11日(金)まで ※事前予約制
見学会の詳細やご予約は、特設イベントページよりご確認ください。
特設イベントページを見る
少しでもリノベーションに興味のある方は、お気軽に見学予約くださいませ。
来場者限定!特典プレゼントあり!
当イベントに来場した後、当社でリノベーションをご成約いただいた方に、成約金額に応じて家具をプレゼント!
★500万~999万のご成約
→家具10万円分プレゼント!
★1,000万円以上のご成約
→家具20万円分プレゼント!
特典規約あり。詳しくは、特設イベントページよりご確認ください。
特設イベントページを見る
定額フルリノベーションプラン『LIBEDY』とは?
KULABOのリノベーションデザイナーがこれまでの経験や知識を生かして作成したプランの中から選ぶだけの定額制フルリノベーションプランです。
・プランから”選ぶだけ”
愛知県内で2,000件以上の施工実績があるリノベーションデザイナーが選んだ間違いない設備や建材から構成されたプランから選ぶだけ!
・定額制で分かりやすい資金計画
定額制だからこそ、リノベーションにいくら掛かるか把握しやすく、中古物件探しから検討中の方も資金計画が立てやすくなります。
・専有部分全体の間取り変更も可能
床や壁、水回りの交換だけではなく、専有部分全体の間取り変更も基本工事内容に含まれています。フルリノベーションで配管から作り変えることができるため、自由に間取りを変更できます。
・スピーディーにフルリノベーションができる
一つ一つの設備や部材を細かく決めていく必要がなく、打ち合わせも間取り変更メインの4回程度なので、忙しい方にも手間をかけずスピーディーにオシャレな住まいを実現可能!
・定額でも多彩なセレクトメニュー
実績豊富なリノベーションデザイナーが厳選した設備・部材からプランを構成しているため、全体を通して統一感があるデザインで、トレンドを取り入れたオシャレな空間にできます。
またエコカラットや住宅設備、造作家具の製作など、オプションのご用意もございます。
LIBEDYサービスページを見る
KULABOとは

リノベーションスタジオKULABOは愛知県・岐阜県・東京都(一部エリア除く)において、中古戸建、中古マンションのリノベーション・大規模リフォームの提案をしています。
リノベーションを前提とした中古物件のご紹介から、プラン・デザインの提案、施工、アフターメンテナンスまで一貫してサポートします。お客様のニーズやご予算、ライフスタイルに合わせて部分リフォームからフルリノベーション、耐震工事や断熱工事まで幅広くご対応。デザイン性と価格のバランスを取り、可能な限りお客様のご要望を叶えつつ、適正価格でプランを提案します。
会社概要
■会社名
株式会社sumarch
コーポレートサイト:https://sumarch.co.jp/
■代表者
代表取締役 鳥居 儀彰
■ブランド名
リノベーションスタジオKULABO
KULABO HP:https://kulabo.co.jp/
■所在地
本社 〒450-6419 愛知県名古屋市中村区名駅三丁目28番12号 大名古屋ビルヂング19F
TEL:052-526-1395 FAX:052-526-1396
店舗
中村スタジオ/千種スタジオ/緑スタジオ/一宮スタジオ/春日井スタジオ/岡崎スタジオ/長久手スタジオ/豊田スタジオ
■設立
2009年11月
■事業内容
不動産再生事業(リフォーム・リノベーション)
■従業員数
220名(2024年4月時点)
ーーーーーーーーーーーーーーーーーーーーーーーーーーーー
■一般の方からのお問合せ先
リノベーションスタジオお客様総合窓口
0120-85-7755
10:00~18:00 年中無休(年末年始除く)
企業プレスリリース詳細へ
PR TIMESトップへ









